案例风格
案例户型
案例面积
楼盘名称
所在城市
设计师
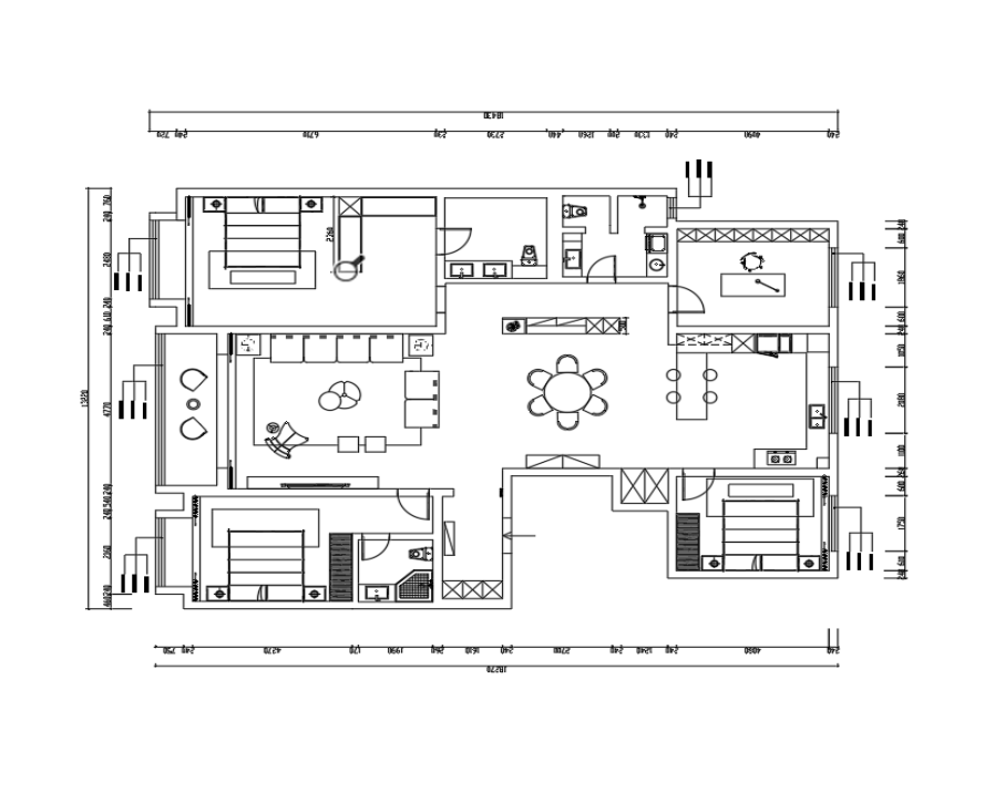
平面布局
面积160平米,法式风格浪漫、轻松、自由、舒适,繁杂而整齐的装修营造出尊贵高雅的品质空间。对于法式美学设计的特色和设计理念,体验高品质生活,感受贵族家居空间。

法式风格的整体布局调和统一,充分利用建筑空间,各功能分区的使用合理,各装修区如客厅、厨房、卧室等的统一装饰,各空间均围绕法式主题风格设计,每个空间都有特色,也有协调性。
空间布局对称,风格端庄大气,气势恢宏。

卧室的整体风格是偏浪漫、温馨的风格,比较注重营造空间的流畅感和系列化,以及色彩和元素的搭配。



